規范詳解:規范詳解之室外樓梯
大家好,往期我錄制過一期樓梯有關的規范詳解,今天的內容是在這個基礎上細化,具體介紹“室外樓梯”在規范中的要求。

文中的這張照片是一個綜合體在外立面上新增設了4部室外樓梯。
一般商業綜合體新增室外樓梯的常見原因是按照老規范審批的高層商業建筑在后期招商時新增了“兒童活動場所”,由于2015年5月1日起生效的新版《建筑設計防火規范》中強制要求高層建筑內的“兒童活動場所”必須設置獨立的專用樓梯,即樓梯只能給“兒童活動場所使用”,不能給除了此場所以外的其他場所和其他樓層使用,所以為了解決這一問題通常都采用增加“室外樓梯”的方式來解決此問題。
消防規范中對于“室外樓梯”的要求如下:
GB50016-2014(2018版)《建筑設計防火規范》
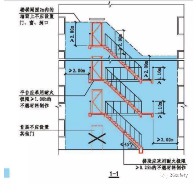
6.4.5 室外疏散樓梯應符合下列規定:
1 欄桿扶手的高度不應小于1.10m,樓梯的凈寬度不應小于0.90m。
2 傾斜角度不應大于45°。
3 梯段和平臺均應采用不燃材料制作。平臺的耐火極限不應低于1.00h,梯段的耐火極限不應低于0.25h。
4 通向室外樓梯的門應采用乙級防火門,并應向外開啟。
5 除疏散門外,樓梯周圍2m內的墻面上不應設置門、窗、洞口。疏散門不應正對梯段。
規范條文解釋如下:
6.4.5 本條為強制性條文。本條規定主要為防止因樓梯傾斜度過大、樓梯過窄或欄桿扶手過低導致不安全,同時防止火焰從門內竄出而將樓梯燒壞,影響人員疏散。室外樓梯可作為防煙樓梯間或封閉樓梯間使用,但主要還是輔助用于人員的應急逃生和消防員直接從室外進入建筑物,到達著火層進行滅火救援。對于某些建筑,由于樓層使用面積緊張,也可采用室外疏散樓梯進行疏散。
在布置室外樓梯平臺時,要避免疏散門開啟后,因門扇占用樓梯平臺而減少其有效疏散寬度。也不應將疏散門正對梯段開設,以避免疏散時人員發生意外,影響疏散。同時,要避免建筑外墻在疏散樓梯的平臺、梯段的附近開設外窗。



